Você já percebeu como o caminho dentro de um supermercado nunca é aleatório?
10/15/20252 min read


Nada ali é por acaso — nem a localização da padaria, nem o lugar do hortifrúti, nem o trajeto que te leva até o caixa.
Cada setor é pensado para guiar o cliente, despertar sensações e influenciar decisões de compra.
Se você vai projetar ou montar um supermercado, entender a lógica por trás do layout é essencial.
Padaria e Açougue na frente da loja
O cheiro de pão recém-assado e a vitrine de carnes frescas criam um convite irresistível logo na entrada. Essa estratégia gera impacto sensorial e atrai o público para dentro da loja.
Porém, há um contraponto: filas próximas ao acesso e um fluxo de clientes que entram apenas para comprar pão ou carne, sem explorar o restante da loja.
É uma boa escolha quando o foco é conveniência e alto giro de produtos frescos.
Padaria e Açougue nos fundos da loja
Quando posicionados nos fundos, o cliente precisa atravessar os corredores até chegar nesses setores — e nesse trajeto ele entra em contato com outros produtos, aumentando a chance de compras não planejadas.
Essa configuração costuma elevar o ticket médio, especialmente em cidades com poucas padarias de rua, onde o supermercado se torna o ponto principal para esse tipo de compra.
Hortifrúti logo na entrada
O hortifrúti é o cartão de visitas da loja. Suas cores e texturas dão vida ao espaço e criam uma sensação de frescor e qualidade.
Começar o percurso por esse setor transmite uma mensagem poderosa: “aqui tudo é novo, natural e bem cuidado”. É também uma forma de criar contraste visual com os demais corredores, reforçando a identidade da marca.
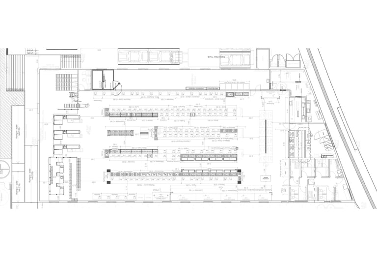
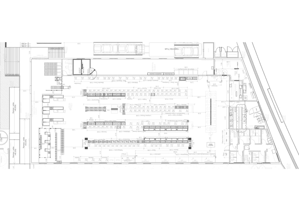
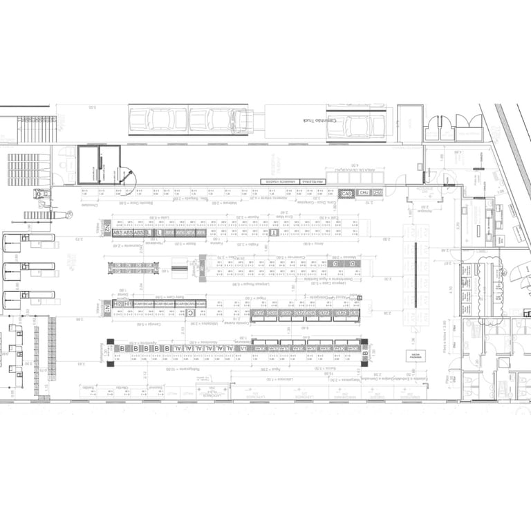
Setores estratégicos e experiência de compra
Produtos de alta rotatividade, como leite e ovos, costumam ficar nos fundos — forçando o cliente a percorrer toda a loja.
Enquanto isso, itens de compra rápida, como bebidas geladas e snacks, podem ser colocados perto dos checkouts, aproveitando o momento final da jornada para aumentar as vendas por impulso.
Já os setores técnicos (depósito, câmaras frias, panificação industrial) devem estar próximos à doca de abastecimento, garantindo eficiência logística sem afetar a experiência do cliente.
Conclusão
Não existe uma regra universal. O segredo está em equilibrar conveniência e exposição, usando o layout como ferramenta de estratégia comercial.
A boa arquitetura de varejo não apenas organiza o espaço — ela influencia o comportamento do consumidor e transforma o ato de comprar em uma experiência planejada.


