Projetos Comerciais
Nesta seção apresento uma seleção dos projetos comerciais realizados.
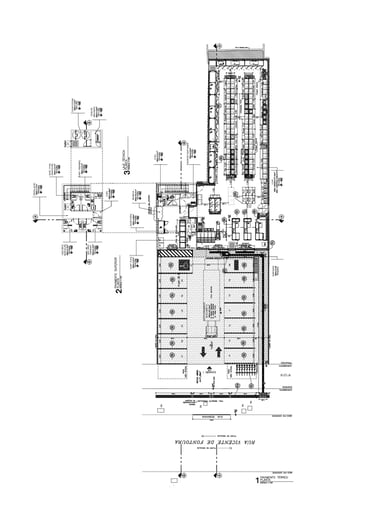
Supermercados Dia - Porto Alegre - Rua Vicente da Fontoura
Projeto arquitetônico de minha autoria, desenvolvido em 2017 para o Supermercado DIA, referente à implantação de uma unidade do modelo DIA Market 300, localizada na Rua Vicente da Fontoura, no bairro Santana, em Porto Alegre (RS). O projeto envolveu a concepção, adaptação e implantação de um imóvel comercial destinado ao formato de supermercado de bairro, com aproximadamente 300 m² de área de vendas, voltado a compras de conveniência e proximidade.
O modelo DIA Market caracterizava-se por lojas compactas, implantadas em áreas urbanas consolidadas, com foco em agilidade, acessibilidade e relação direta com o entorno imediato. O projeto arquitetônico foi desenvolvido considerando a otimização do layout interno, a eficiência dos fluxos operacionais e a organização clara dos setores de vendas, estoque e áreas de apoio, atendendo aos padrões técnicos e operacionais da rede.
A implantação do imóvel considerou o intenso fluxo de veículos da Rua Vicente da Fontoura, prevendo vagas de estacionamento frontais como estratégia para facilitar o acesso de clientes que se deslocam de carro, sem comprometer a visibilidade da fachada nem a dinâmica urbana do entorno. Essa solução reforça o caráter de conveniência do modelo e amplia a atratividade da loja.
O imóvel foi projetado, construído e inaugurado como unidade do Supermercado DIA em 2017, tendo posteriormente passado por alteração de operação, abrigando atualmente outra rede supermercadista.






