Projetos Corporativos
Nesta seção apresento uma seleção dos projetos corporativos realizados.












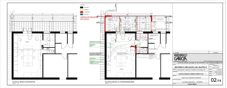
Quatro G - Pesquisa & Desenvolvimento
Parque Científico e Tecnológico da PUCRS (Tecnopuc) - Porto Alegre, RS
A Quatro G Pesquisa & Desenvolvimento (Quatro G Biotecnologia) é uma empresa brasileira com atuação consolidada no setor de biotecnologia, especializada em pesquisa, desenvolvimento, produção e comercialização de insumos biotecnológicos voltados à biologia molecular, biotecnologia e área biofarmacêutica. Sua sede está localizada no Parque Científico e Tecnológico da PUCRS (Tecnopuc), em Porto Alegre, um dos principais polos de inovação do país.
O ambiente do Tecnopuc proporciona integração entre empresas, universidades e centros de pesquisa, contexto no qual a Quatro G desenvolve soluções de alto desempenho para aplicações científicas e laboratoriais, atendendo clientes em todo o Brasil.
Proposta de intervenção arquitetônica:
O projeto de reforma e ampliação da sede da Quatro G teve como premissa principal interferir o mínimo possível na fachada existente do prédio 92A, preservando a identidade arquitetônica original e respeitando as condicionantes do complexo tecnológico. A ampliação do laboratório avançou para o exterior da edificação, aproveitando a estrutura metálica existente, o que permitiu ganho de área construída com racionalidade construtiva e baixo impacto visual.
A nova área incorporou:
recepção de acesso;
sala de trabalho para estagiários;
nova sala de gerência, liberando a área interna anteriormente ocupada para instalação da sala de amostras.
O projeto arquitetônico previu o reaproveitamento da porta original de acesso ao laboratório, relocada para uma nova parede de alvenaria, garantindo continuidade funcional e economia de recursos. O piso de basalto existente foi substituído por basalto polido, promovendo maior uniformidade estética e facilidade de manutenção.
Os fechamentos em alvenaria foram posicionados abaixo da viga metálica da estrutura existente, que passou a funcionar também como cobertura. Essa solução recebeu calha metálica para coleta de águas pluviais e sistema de isolamento térmico e acústico, adequado às exigências técnicas de ambientes laboratoriais.
Na fachada voltada para o jardim — fachada principal do edifício — foi implantada esquadria metálica com vidro duplo termoacústico fixo, garantindo iluminação natural controlada, proteção contra o calor do sol poente e atenuação do ruído proveniente da Avenida Bento Gonçalves.
A alvenaria abaixo da esquadria foi recuada e pintada com a mesma tonalidade verde da edificação existente, criando um contraste intencional com a nova alvenaria branca e a estrutura metálica, sem comprometer a unidade compositiva do conjunto arquitetônico.
A organização dos fluxos internos priorizou o deslocamento eficiente de pessoas e equipamentos, com circulações de 1,10 m de largura e portas de correr em vidro, otimizando a operação do laboratório e qualificando a experiência de uso dos ambientes.


